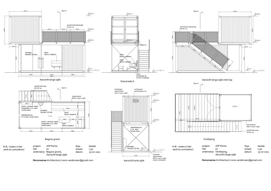
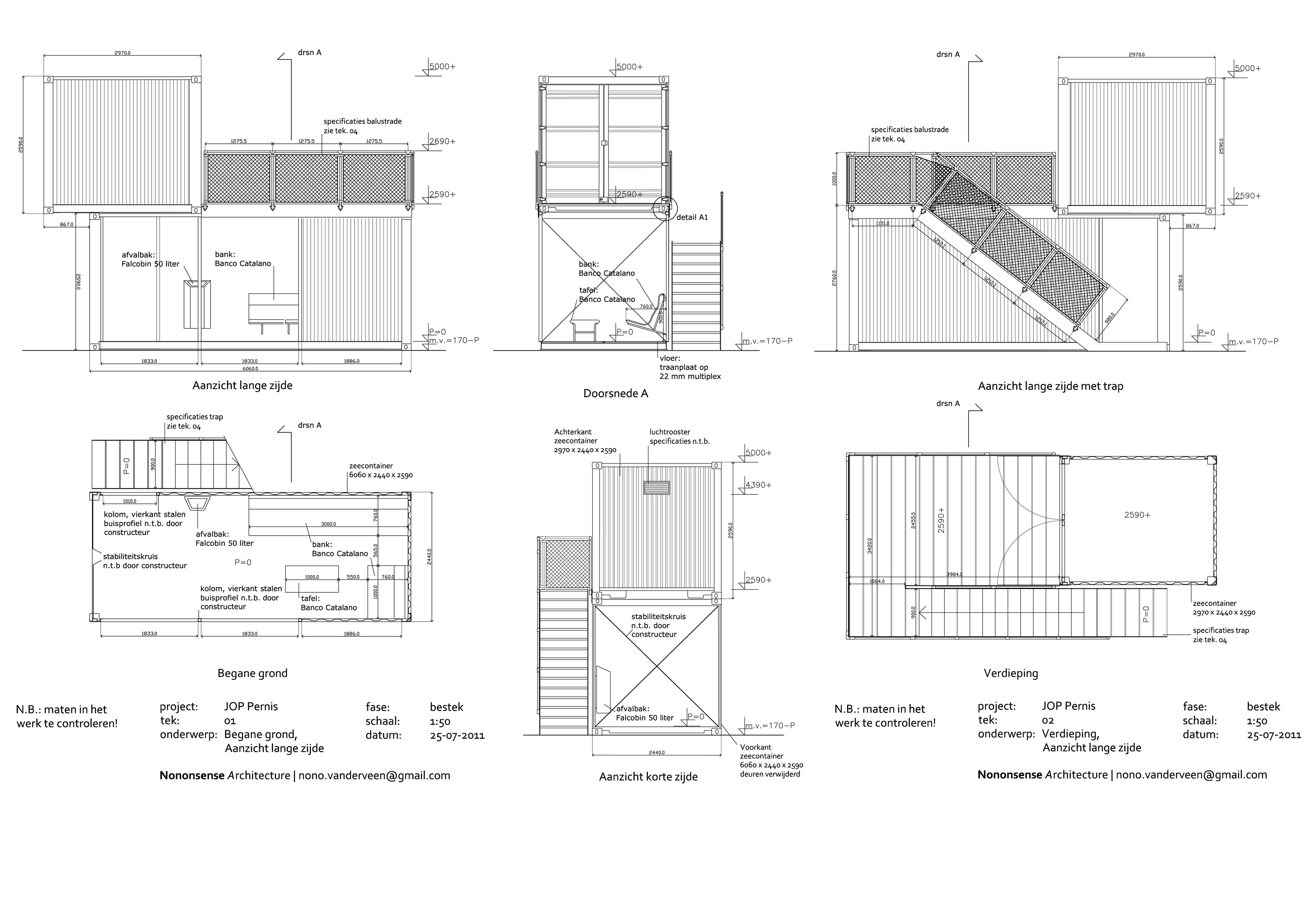
Pernisser JOP

Bestektekeningen Nononsense Architecture

Bookmark de permalink.

Plaats een reactie

Deze site gebruikt Akismet om spam te bestrijden. Ontdek hoe de data van je reactie verwerkt wordt.